
ÉçÇøÐÂÉú£¬ÔÃÏíÉú»î
ÉϺ£±ö´¨Â·502ºÅÔÃÏíÀÏÄêʳÌÃ
³¡µØÔ×´ÊÇÒ»´¦·ÏÆúµÄÃºÆøÕ¾£¬ÃæÏòºÓµÀ±±Öñ¸Û£¬¼ÈλÓÚ·â±Õ¾Ó×¡ÇøµÄ±ßÔµ£¬ÓÖ½ôÁÚ¹«¹²½»Í¨½ÚµãµÄ¹Ø¼ü²¿Î»¡£ÔÚʵµØµ÷Ñйý³ÌÖз¢ÏÖ£¬³¡µØÓÉÓÚ²úȨµÈÔÒò£¬Éè¼Æ·¶Î§½ÏΪ¾ÖÏÞ£º²»½öºÓµÀÒ»²à²»¿ÉÀ©Õ¹¡¢¾Ó×¡ÇøÎ§Ç½Ò಻¿ÉÒÆ¶¯£¬ÇÒÓÉÓÚÃºÆøÕ¾³£Äê»Ä·Ï£¬½á¹¹ÏµÍ³ÔÚ¿±²â±¨¸æÖÐÒ²ÎÊÌâÖØÖØ£¬½öÊ£µÄ΢ÈõÓÅÊÆËÆºõ½öΪ¶þ²ãƽ̨µÄÊÓÏß¼°¾°¹Û×ÊÔ´¡£ÈçºÎÔÚ¹«¹²Óë˽ÃÜÖ®¼ä×öµ÷ºÍ£¬ÈçºÎͨ¹ý¹¦ÄÜÖû»¡¢½á¹¹¼Ó¹Ì¡¢³¡¾°ÓªÔìµÈһϵÁÐÊֶ줻îÕâ´¦¼È±ßÔµÓÖÖÐÐÄ¡¢¼È˽ÃÜÓÖ¹«¹²¡¢³äÂúì¶ÜÐԵĿռäÊÇÉè¼ÆÊ¦ÐèҪ˼¿¼µÄÎÊÌâ¡£

¡ø ³¡µØÔ×´º½ÅÄͼ
ËüÊÇÒ»¸öµäÐÍÒÔ¹¤Ð½½×²ãÀÏÄêÈËΪÖ÷µÄ´óÐ;Ó×¡Çø£¬´æÔÚÈ粿·Ö¹«¹²·þÎñÉèÊ©»Ä·Ï¡¢ÊÊÀÏ»¯ÉèÊ©²»×ã¡¢ÀÏÄêÈ˵IJÍÒûÎÊÌâÎÞ·¨½â¾öµÈÎÊÌâ¡£ÔÚǰÆÚ¹ã·ºÌýÈ¡Öܱ߾ÓÃñ¼°¾Óί»áµÈ¹ÜÀí²¿ÃŵÄÏà¹ØÒâ¼ûºó£¬È·¶¨½¨ÉèÀÏÄêÉçÇøºôÉù×î¸ßµÄ¡°ÉçÇøÊ³Ìá±£¬Îª±ÜÃâµ¥Ò»µÄ²ÍÒû¹¦ÄܲúÉú¿Õ¼äÀË·Ñ£¬±¾ÏîÄ¿½«Ìṩһ¸öÐÐΪ½»Ö¯µÄ¶àÒå¿Õ¼ä£¬Í¬Ê±Âú×ãÀÏÄêÈ˵ľ«ÉñÐèÇó¡£


¡ø ʳÌÃÍâ¹Û
ÔÚÀÏÄêÈ˵ÄÂþÓÎÈ«¹ý³ÌÖУ¬ÎÒÃDz»½öÔڹؼü²¿Î»ÉèÖÃÁËÉçÇøÂýÐÐϵͳ¡¢È«³¡µØ·öÊÖϵͳ¡¢È«³¡µØµØÃæµ¼ÊÓϵͳ¡£Í¬Ê±Ò²ÔÚÐ¡ÇøÂ¥µÀÄÚ²¿×öÁËÎÞÕϰ¸ÄÔìÊԵ㣬ּÔÚ·ÖÎöÀÏÄêÈË´Ó³ö¼ÒÃÅ¿ªÊ¼µÄ³öÐÐÈ«Á÷³Ì£¬²¢½øÐÐÊÊÀÏ»¯¸ÄÔ죬Âú×ãÆäÈÕ³£ÐÔÍâ³ö¸¨ÖúµÄÐèÇ󣬱£»¤ÀÏÄêÈ˲»Êܳ£¹æµÄÒâÍâÉ˺¦£»Í¬Ê±Ò²·á¸»ÀÏÈËÑØÍ¾µÄ¿Õ¼äÌåÑé¡£



¡ø ÊÊÀÏ»¯¸ÄÔì
ÉçÇøÊ³Ìò»½ö¿ÉÒÔ¾ßÓÐÈÕ³£ÐԵIJÍÒû¹¦ÄÜ£¬Ò²ÄÜÂú×ã·ÇÈÕ³£ÐԵijªÏ·¡¢Ñݽ²µÈÀÏÄêÈËϲ»¶µÄ»î¶¯£¬½øÒ»²½ÃÖ²¹Öܱß×¡ÇøÄÚÍâ¿Õ¼äÀà±ð·¦ÉƿɳµÄȱÏÝ¡£
¡ø ³·µô×ÀÒκó£¬ÊÒÄÚÍâµÄ»î¶¯¿Õ¼ä


¡ø ʳÌÿռä¸ÅÀÀ
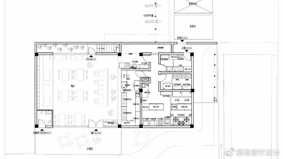
¡ø Éè¼ÆÆ½ÃæÍ¼
ÏîÄ¿Ãû³Æ£º±ö´¨Â·502ºÅÔÃÏíÀÏÄêʳÌÃ
Éè¼Æ·½£ºÉϺ£½»Í¨´óѧÉè¼ÆÑ§Ôº°ÂĬĬ¹¤×÷ÊÒ
ÏîĿʱ¼ä£º2019Äê12Ôµ½2020Äê7ÔÂ
ºÏ×÷·½£º±±¾©ÖÐÔª¹¤³ÌÉè¼Æ¹ËÎÊÓÐÏÞ¹«Ë¾
¿Í»§£ºÉϺ£Òº»¯Ê¯ÓÍÆø¾ÓªÓÐÏÞ¹«Ë¾
½¨ÖþÃæ»ý£º232m?
ÉãÓ°°æÈ¨£ºÕÂÓÂ
- END -

ÃâÔðÉùÃ÷£º±¾ÎÄͼƬ×ÊÁÏËØ²ÄÀ´Ô´ÓÚÍøÂ磬ÈçÓÐÇÖȨÇëÁªÏµÎÒÃÇ£¬ÎÒÃÇÁ¢¼´´¦Àí£¬¸Ðл£¡
¸ü¶àÏêÇéÇë¹Ø×¢³øÒ⹫ÖÚºÅ
+ ÉîÛÚÊÐÄÏÉ½ÇøÁôÏÉ´óµÀÆ½É½Ò»Â·ÔÆ¹È¶þÆÚ10¶°101
+ ÉÌÎñºÏ×÷ÇëÁªÏµ£º
µ¥Ð¡½ã£º13923810609
+ sunny@k-cfp.com