°éËæ×Å5GÎïÁªÍø¼¼ÊõÈÕ½¥³ÉÊ죬ÖÇÄܲÍÒûÉè¼ÆºÍÓ¦ÓÃÊÇδÀ´·¢Õ¹µÄ´óÇ÷ÊÆ¡£ÉîÛÚÊмòÒâÉè¼Æ¹ËÎÊÓÐÏÞ¹«Ë¾£¨¼ò³Æ£º¡°J&D-¼òÒâ¹ËÎÊ¡±£©ÊÇÒµ½ç¶ÀÌØµÄ´´Ð¹ËÎÊÉè¼Æ»ú¹¹£¬ÖÂÁ¦ÓÚ²ÍÒû¡¢ÉÌÒµ´´ÐÂÉè¼Æ¹ËÎÊ·þÎñ¡£¡°A&D-³øÒâÉè¼Æ¡±´´Á¢ÓÚ2012Ä꣬ÊÇ¡°J&D-¼òÒâ¹ËÎÊ¡±Æìϵijø·¿Éè¼Æ¶ÀÁ¢Æ·ÅÆ£¬ÖÂÁ¦ÓÚÆ½Ì¨·¢Õ¹¡£ÔÚ³ø·¿Éè¼Æ¼°Ó¦ÓÃÉÏ£¬ÎÒÃÇʼÖÕ×ßÔÚÐÐÒµÇ°ÑØ£¬ÓÃרҵ¡¢¿ÆÑ§¡¢ÖÇÄÜ¡¢´´ÒâµÄÉè¼Æ·½°¸À´³¬Ô½¿Í»§µÄÔ¤ÆÚ¡£


¡°A&D-³øÒâÉè¼Æ¡±·Ç³£ÈÙÐÒÄܳÉΪʳ½çµÄ³ø·¿Ö÷´´Éè¼Æµ¥Î»£¬Ê³½çµÄ¶¨Î»³¬ÍÑÓÚ´«Í³²ÍÒûÌØµã£¬ÊÇÔÚÖйú5000Äê²ÍÒûÎÄ»¯µÄµ×ÔÌ»ù´¡ÉÏ£¬¼¯¿Æ¼¼¡¢´´Ð¡¢Êý¾Ý¡¢ÖÇÄÜ¡¢Öǻۻ¯ÓÚÒ»ÌåµÄȫг¢ÊÔ£¬ Ò²ÊǶÔδÀ´²ÍÒûÀíÄîµÄÈ«ÐÂ̽Ë÷¡£


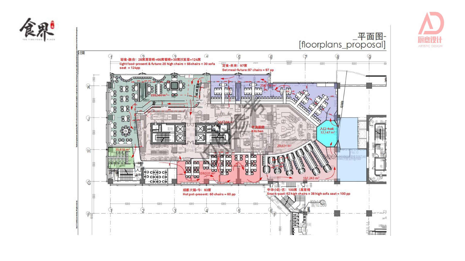
ÔÚÈýλÖ÷´´Éè¼Æ×Ü¼à´øÁìÏ£¬Íê³É´Ë´ÎÐÐÉÅʳ½çµÄ¿Æ¼¼Ê±ÉиС¢ÖÇÄܶàÑù»¯¡¢ÈÚºÏÃÀ¹ÛÐԵĴ´Òâ³ø·¿Éè¼Æ¡£ÔÚÂú×ãÓû§ÐèÇó¼°ÌåÑéµÄÇé¿öÏ£¬×î´ó³Ì¶ÈµÄ½ÚÔ¼ÈËÁ¦³É±¾Ö§³ö£¬Í¬Ê±ÈÃËùÓкóÇÚ³øÊ¦²Ù×÷ÈËÔ±£¬×î´ó»¯µÄչʾ²ÅÄÜ£¬²¢½áºÏÏßÉÏÏßÏÂÖ±²¥Õ¹Ê¾£¬È«³¡¾°¡¢È«·½Î»¡¢È«Êý¾ÝģʽÏ·¢»Ó×î´óµÄ¾¼ÃЧÄÜ£¬Êͷųö¶à²ã´Î¡¢¶àά¶È¡¢¶à¿Õ¼äµÄÔËÐÐЧÂÊ¡£ÆäÉè¼ÆºËÐÄ˼·ÔÚÓÚÒÔÏÂÎåµã£º
£¨1£©È«¾°²Ù×÷չʾ£º¡°»¥ÁªÍø+Ã÷³øÁÁÔµÄÉè¼ÆÀíÄչʾÃÀÊ³ÖÆ×÷¹ý³Ì£¬Èù˿ͳԵð²È«£¬³ÔµÃ·ÅÐÄ£¬³Á½þÔÚÃÀÃîζÀٱ仯ÈÚºÏÖС£
£¨2£©ÖÇÄܳö²Í£º²ÉÓÿÕÖÐÔÆ´«µÝ·½°¸¡¢´ÅÐü¸¡ÔËÊäÉ豸µÈµÈÖÇÄܿƼ¼²úÆ·É豸£¬¼õÉÙ³ö²ÍµÈ´ýʱ¼ä£¬ÔöÇ¿¹Ë¿ÍÓòÍÌåÑé¸Ð¡£
£¨3£©ÖÇÄÜÈ¡²Í£º²ÉÓÃÖÇÄܲ;߻ØÊÕϵͳ¡¢³øÓàÀ¬»ø´¦Àí»úµÈ£¬¸ßЧ±ã½Ý£¬»·±£ÎÀÉú¡£
£¨4£©ÖÇÄܽáË㣺²ÍÌü³ø·¿Ö²ÈëÖÇÄܽáËãϵͳ£¬×î´ó»¯½ÚÔ¼ÈËÁ¦³É±¾£¬¼õÉÙÅŶÓʱ¼ä£¬Ìá¸ßЧÂÊ¡£
£¨5£©È«¾°Êý¾ÝÖ±²¥£º½áºÏÏßÉÏÏßÏÂÖ±²¥ÐÎʽ£¬ÎªÒµÖ÷½øÐÐÊý¾Ý²É¼¯¡¢Í³¼Æ¼°·ÖÎö£¬Ôö¼Ó¿Í»§Æ·ÅÆð¤ÐÔ£¬Ôö¼Ó»ØÍ·ÂÊ£¬Ìá¸ß¾¼ÃÐ§Òæ¡£
¡°A&D-¼òÒâ¹ËÎÊ¡±×÷Ϊ²ÍÒûÒ»Ì廯Éè¼ÆµÄ¿ª´´Õߣ¬ÊÇÖÇÄܲÍÒûÉè¼Æ¼°Ó¦ÓõÄÈ«°¸·þÎñ¹«Ë¾¡£ÔÚ¶àÄêµÄ¾Ñé»ýÀÛÖУ¬ÎÒÃÇʼÖÕרעÓÚ²ÍÒûÁìÓò£¬Îª²ÍÒûÐÐÒµ´øÀ´³ÖÐøÐԵĴ´ÐÂÁ¦ÊÇÎÒÃǵÄ×·Çó£¬ÕâÒ²ÓëÐÐÉÅʳ½çµÄ·¢Õ¹ÀíÄî¼°Æ·ÅÆÎÄ»¯ÊÇÏàÆõºÏµÄ¡£ÔÚ¶àÄ괫ͳ²ÍÒû²ÍÌü³ø·¿¹æ»®Éè¼ÆµÄ¼á¶¨»ù´¡Ï£¬ÎÒÃǸü¼ÓÆÚÍûδÀ´²ÍÒûµÄ´´ÐÂÃæÃ²£¬¶øÎÒÃÇÓÐÐÒ²ÎÓë²¢½øÐÐÒýµ¼¡£
Òµ¼¨Õ¹Ê¾



¸ü¶àÏêÇéÇë¹Ø×¢³øÒ⹫ÖÚºÅ
+ ÉîÛÚÊÐÄÏÉ½ÇøÁôÏÉ´óµÀÆ½É½Ò»Â·ÔÆ¹È¶þÆÚ10¶°101
+ ÉÌÎñºÏ×÷ÇëÁªÏµ£º
µ¥Ð¡½ã£º13923810609
+ sunny@k-cfp.com